Property Details
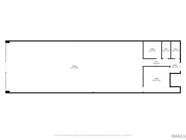
Suite 228 at Black Warrior Center offers approximately 3,000 SF with a large open main area and several enclosed rooms toward the rear of the suite. The layout provides flexibility for a mix of open-use space and separate rooms, making it well suited for retail, service, or professional users. A defined entry and adaptable floor plan allow the space to be customized to fit a variety of business needs.
Quick Facts
Unit 228, 230 McFarland BoulevardNorthport, AL 35476
MLS #173183
Listed about 2 months ago
$3,500 /month
Calculate PaymentsFeatures
- Type: Retail
- Total Sq. Ft.: 3000.0
- Year Built: 1976