Property Details
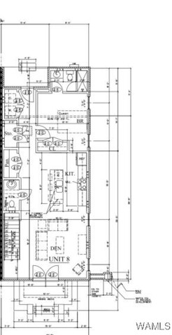
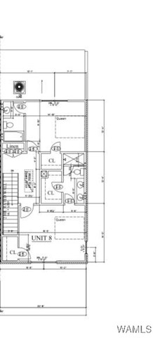
Currently under construction, 1030 22nd Avenue is a brand-new 3-bedroom, 3.5-bath corner unit townhome offering modern design and an unbeatable location just minutes from The University of Alabama. Inside, you’ll find hardwood floors, a spacious kitchen with a pantry, island, tile backsplash, wet bar, quartz countertops, and stainless steel appliances including a gas range. Each bedroom features its own private bath, while the master suite stands out with two closets for added storage and convenience. The townhome also comes with gated parking, which provides security and ease. With its fresh construction, stylish finishes, and prime location near campus, this property is an excellent opportunity for students, investors, or anyone looking for brand-new low-maintenance living.
Quick Facts
1030 22nd AvenueTuscaloosa, AL 35401
MLS #171226
Listed 2 days ago
$974,900
Calculate PaymentsFeatures
- Type: Townhouse
- Total Sq. Ft.: 1830.0
- Bedrooms: 3
- Baths: 3 full & 1 half baths
- Acreage: 0.0
- Garage: No
- Interior Features: CeilingFans, GraniteCounters, PrimaryDownstairs, OpenConcept, Pantry, SolidSurfaceCounters, CableTv, WalkInClosets
- Cooling: Electric
- Heating: Electric
- Year Built: 2025
- Appliances: Dishwasher, ElectricWaterHeater, Freezer, GasOven, GasRange, Microwave, Refrigerator, WineCooler
- Construction: BrickVeneer
- Exterior Features: RainGutters
- Fireplace: None
- Flooring: Hardwood
- HOA Amenities: Gated
- HOA Fee: 346.0
- HOA Term: Monthly
- Laundry: Inside,MainLevel,LaundryRoom
- Levels: Two
- Porch/Patio: Balcony, Covered
- Roof: Composition, Shingle
- Security Features: SmokeDetectors
- Sewer: Connected
- Utilities: CableAvailable, SewerConnected
- Waterfront: NA
- Windows: DoublePaneWindows